Donamireal logo
  • úvod
  • katalog
  • reference
  • kontakt

Real 101

Real 59 velký

Obecná charakteristika

Real 101 je dvoupodlažní dům s plnohodnotným druhým podlažím a sedlovou střechou. Je řešený jako dvojdům a lze ho umístit na menší pozemek.

Chci víc informací

tento dům mě zajímá a chci se o něm dozvědět více:


* Odesláním formuláře dávám souhlas se zpracováním mých osobních údajů a s kontaktováním mé osoby prostřednictvím telefonu, SMS nebo formou emailové zprávy společností DONAMI Real s.r.o


Cena

Aktuální cenu domu Vám zpracujeme na vyžádání

Parametry

Zastavěná plocha: 65 m²
Podlahová plocha: 101 m²
Sklon střechy: 30°

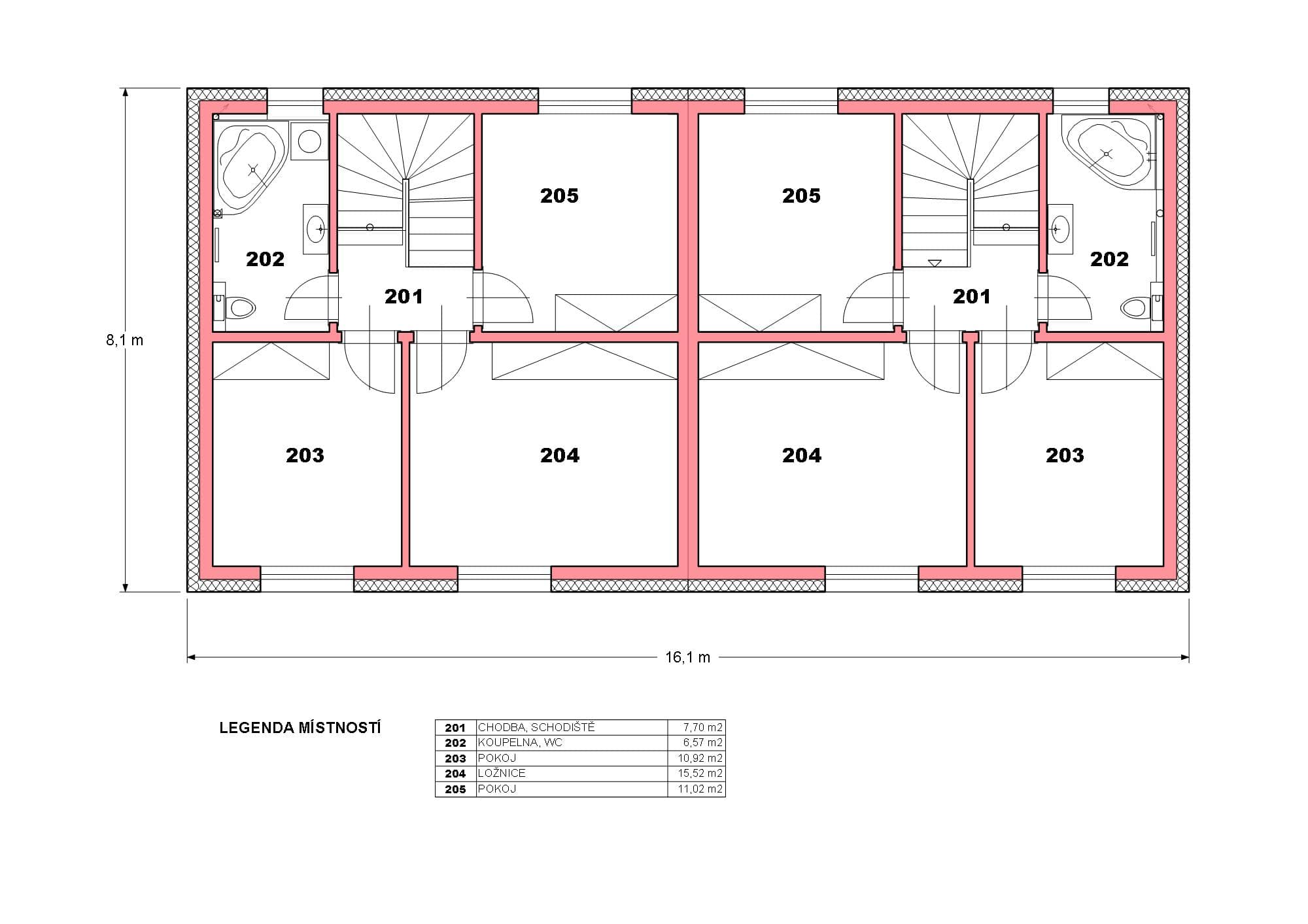
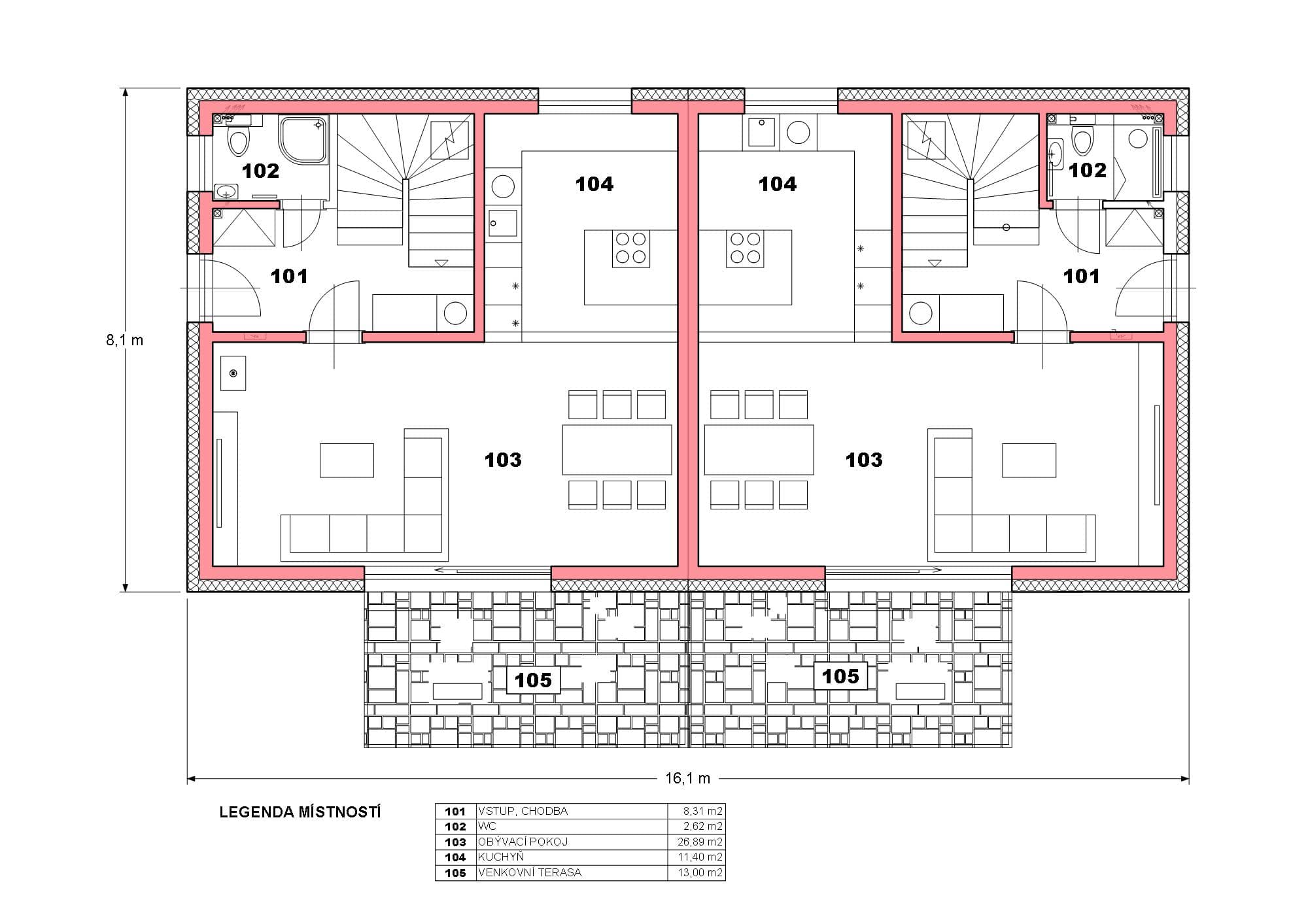
Půdorys
Půdorys

Infolinka

+420 731 547 719

Email

obchod@donamireal.cz

Sociální sítě

Instagram

Adresa

DONAMI Real s.r.o.
U Kolory 302
Liberec XXV-Vesec
463 12 Liberec
IČO: 04561058